top of page
SOPHIE MAILLE
PAYSAGISTE CONCEPTEUR EN DEVENIR
![]() | ![]() |
|---|---|
![]() | ![]() |
![]() | ![]() |
![]() | ![]() |
![]() | ![]() |
![]() | ![]() |
![]() | ![]() |
![]() | ![]() |
![]() | ![]() |
![]() | ![]() |
![]() | ![]() |
![]() | ![]() |
STAGE DE FIN D'ETUDES
MAITRISE D'OEUVRE
AGENCE FOLIA UP 2020-2021
STAGE DE 6 MOIS, de Septembre 2020 à Février 2021, Lyon
Différentes missions confiées :
- analyse d'offres techniques,
- AMO, analyse de candidatures pour la ville de Genève,
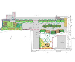
- Conception d'une cour d'école (phase diagnostic, esquisse, AVP, PRO et présentation en mairie),
- Représentations graphiques sur AutoCAD, Sketchup, Photoshop et utilisation de PowerPoint et Excel,
- Carnet de détails (bordures, escaliers et pierres),
- Plans de plantations (phase PRO),
- Perspectives photoshop (collages pour concours),
- Palettes végétales,
- Carnet des seuils,
- Etudes de faisabilités...
​
​
bottom of page























